McKinley Park Studio

When a Chicago food photographer purchased a 4,700-square-foot bow truss warehouse in McKinley Park, the dream was to transform the raw industrial shell into more than just a studio. The vision was a creative hub: a light-filled, welcoming environment where clients, stylists, and crew could feel at home while producing motion and still photography for major advertising campaigns.

34-TEN embraced that vision by balancing practicality with bold design. The design team worked to preserve and celebrate the existing structure’s character, while adding thoughtful interventions to support the bustling creative space.

Bring in the Light

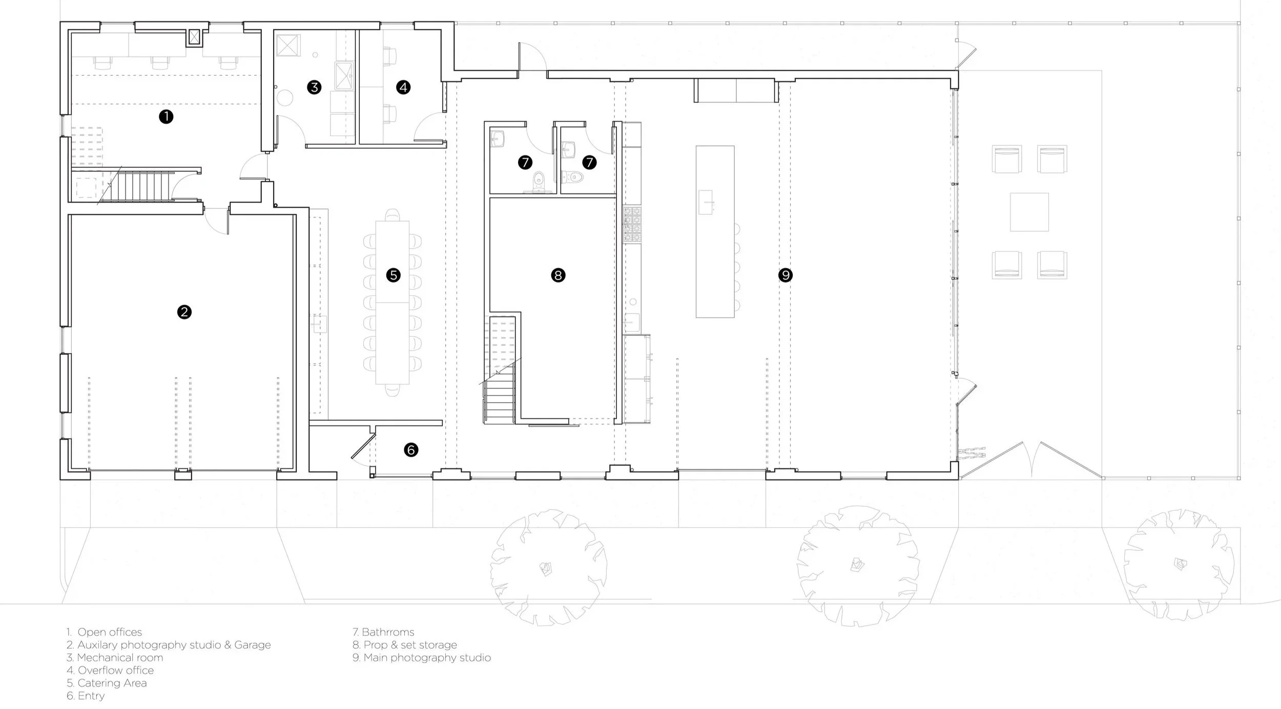
The studio unfolds in two zones: a professional production area anchored by a custom work kitchen, and a hospitality-focused client lounge with a 16-person dining table and flexible gathering spaces. Between them, a central “box” contains prop storage and restrooms below and a mezzanine above, where clients can observe shoots directly or watch them live-streamed on monitors.

Light is the defining feature. A dramatic polycarbonate wall fills the studio with diffuse daylight, while skylights and a full-height glass door add warmth and variation throughout the day. Chosen for both its thermal performance and its ethereal, gossamer-like quality, the polycarbonate material functions as a powerful tool for photography, where controlling light is paramount.

We stuck with his vision for the polycarbonate wall, and I absolutely love it. It’s always a spot that gets attention—people say it’s gorgeous and beautiful.
— Tyllie, Studio Owner

Adapt, Repurpose, and Reuse

Preserving the original masonry openings maintained the building’s industrial authenticity while allowing resources to be invested in critical upgrades, such as new mechanical systems. The street-level garage door now provides seamless equipment load-in, while a secure delivery vestibule ensures an efficient workflow for a busy production schedule.

The result is a boutique-scale studio that feels expansive yet intimate — an environment tailored for both creativity and hospitality. Every detail reflects the client’s commitment to elevating the production experience, from shared meals around the table to outdoor summer lunches. Today, the photography studio attracts major national brands and demonstrates how thoughtful design can transform an industrial building into a thriving creative business and community anchor.

Josh has this really amazing talent — he was able to use some really beautiful things that already existed in the building. He didn’t have to reinvent it, he just made it better.
— Tyllie, Studio Owner
Previous
Previous

Bucktown Black Box

Next
Next

Springfield Beach House