work in progress: Lantern House
Existing conditions
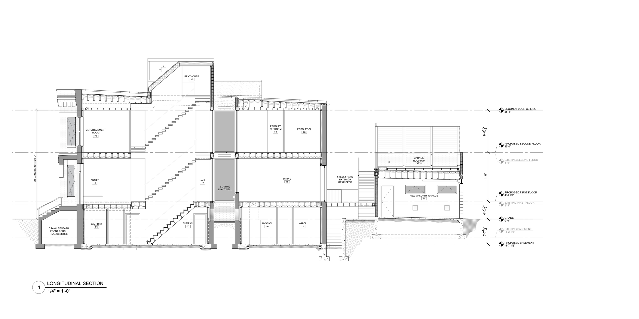
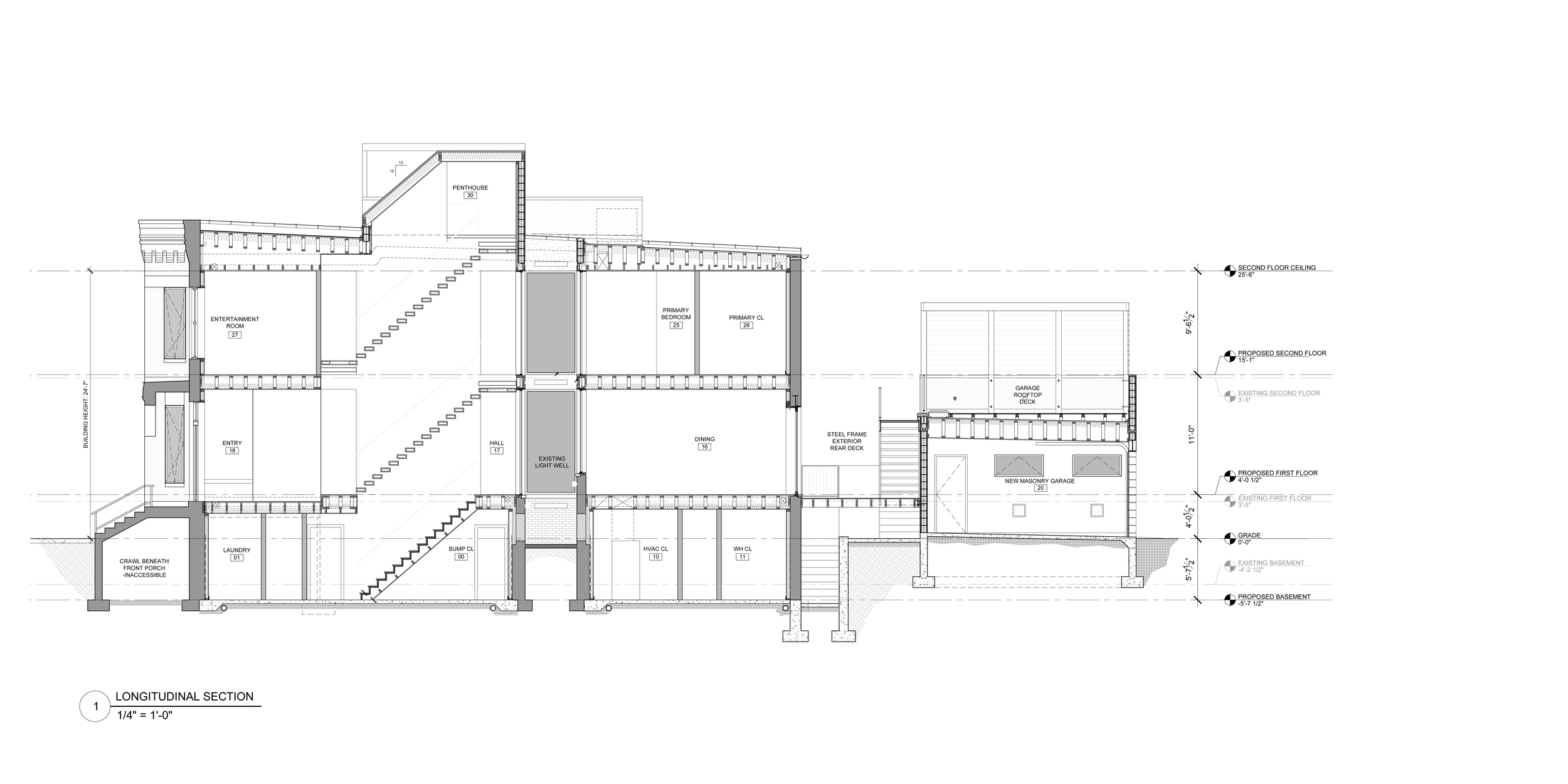
This 4,000-square-foot renovation reimagines an 1890s two-flat on a tighter-than-standard Chicago lot (24' x 94') into a creatively programmed live-work residence. The client brought us an ambitious brief: he desired a recording studio, home theater, gym, sauna, micro game room, spacious office to accommodate himself and staff, four full bathrooms, a guest room for visiting family, all within a historic shell. There are also two rooftop decks — one above the residence, and one above the garage, expertly weaving together three outdoor spaces between the rooftops and the backyard.
34-TEN jumped at the opportunity. The final design relies on custom fabrication and careful spatial sequencing. A prefabricated wood slat wall maintains privacy for the residential spaces when staff or visitors enter the home, while a translucent “lantern” light well draws daylight through an open riser stair and glows softly at night. Floor-to-ceiling glass walls line the window well, reinterpreting a classic strategy used in historic lot-line buildings to bring light deep into the interior.
Proposed lightwell rendering
Existing lightwell
Opening of the lightwell
Penthouse addition
Panelized walls conceal private bed and bath zones, allowing the house to function simultaneously as workplace and residence. Bathrooms are unified in anthracite tones with seamless microcement floors, and hidden speakers are integrated throughout the home.
Custom furniture, including the dining table, beds, office desk, and even a sauna door handle, was designed in collaboration with skilled fabricators. A NanaWall system opens the kitchen and dining area to a rear deck, with stairs leading to a 20-by-25-foot rooftop terrace above the garage. Advanced lighting and sound systems shift in tone throughout the day to support circadian rhythms, reflecting the project’s embrace of both craftsmanship and technology.
Nearing completion in Spring 2026, the project stands as a testament to thoughtful programming and meticulous execution within a historic Chicago framework.
the details:
General Contractor: Artistic Construction
Millwork: Navillus Woodworks
Lighting: Hoiland Studios
Furniture: BoConcept